


kursaal theatre
Lugano, Switzerland
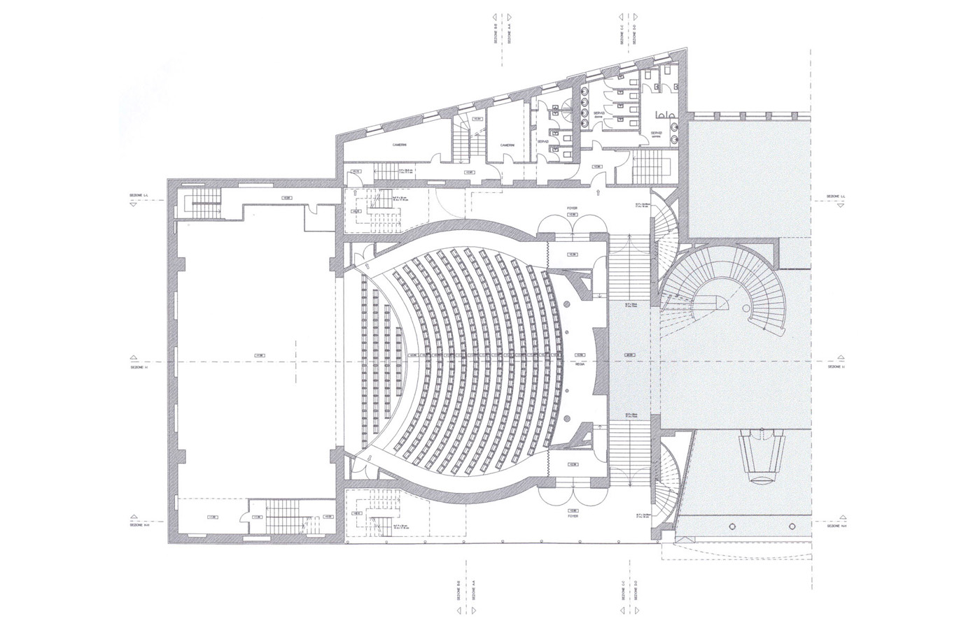
The scheme for refurbishing the Kursaal theatre aims to transform the existing by underlining the strength of the original building, in other words emphasising its cylindrical shape, while seeking to create a relationship between the building and its surroundings. Maintaining the existing volume of the auditorium, that responds perfectly to the needs of theatre production, the form of the cylinder is exploited, with its unique and dynamic nature. A neutral and ephemeral facade helps to create a link between this “introverted” place and its urban context.


